«Заказчица обратилась ко мне с запросом на дизайн квартиры под сдачу в долгосрочную аренду, — рассказывает дизайнер Зоя Закалюжная. — Ее главное пожелание: при ограниченном бюджете создать стильный и удобный интерьер, который быстро бы нашел своего арендатора». Смотрим, что получилось.

Место: г. Москва, ЖК «Зиларт»
Объект: евродвушка 43 кв.м
Высота потолков: 3 м
Автор проекта: дизайнер Зоя Закалюжная
Автор фото: Наталья Вершинина
Бюджет проекта: 3,5 млн рублей
Реализация: 2024 год
Что просила заказчица
- Предусмотреть максимум мест хранения.
- Продумать возможность организации рабочего места и ТВ-зоны.
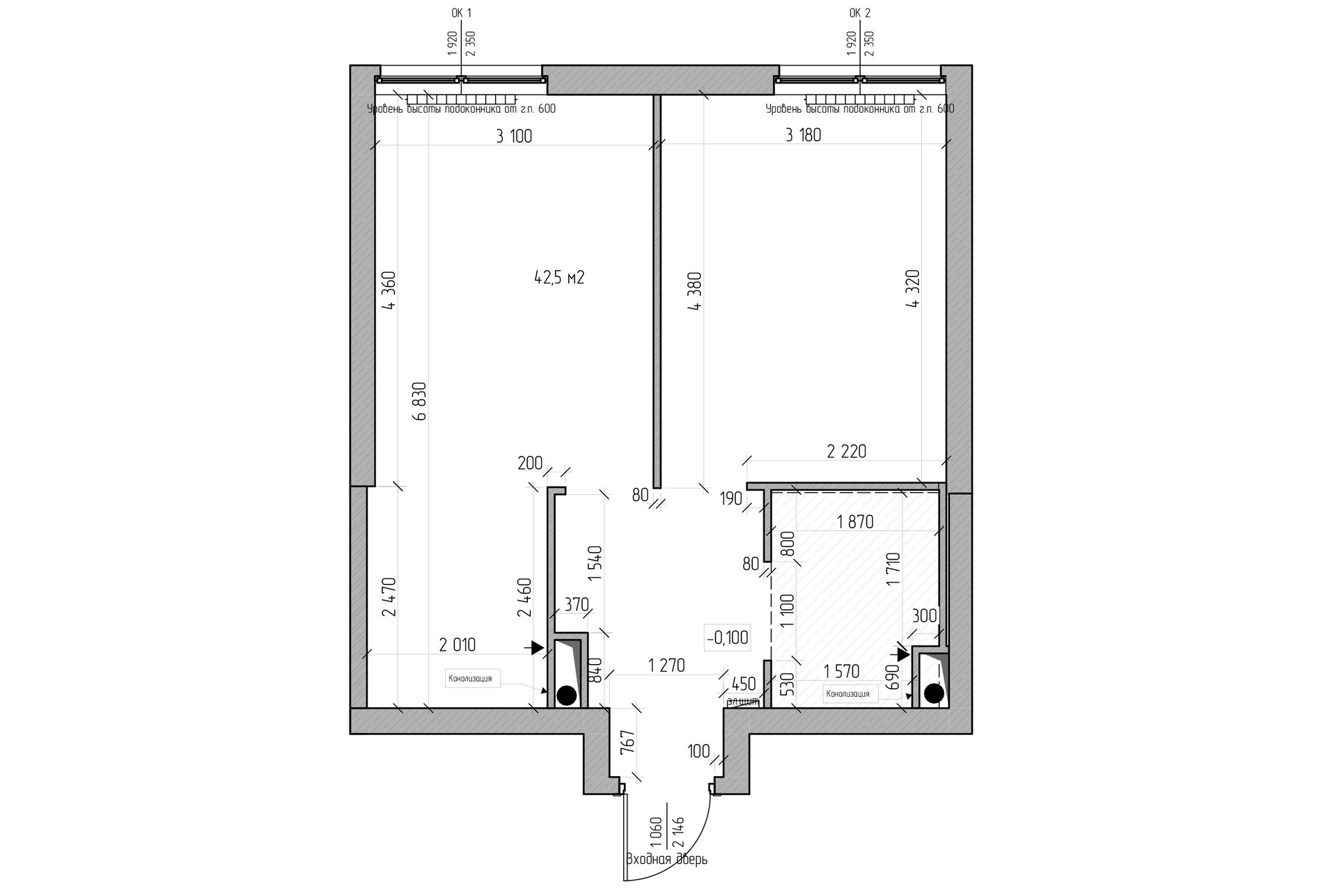
Логика перепланировки
Планировку от застройщика переработали, создав несколько функциональных зон. В квартире есть отдельная спальня, оборудованная рабочим местом у окна, и просторная гостиная с выделенной кухней-нишей. При входе спроектирована гардеробная.
Кухня-гостиная
Для гарнитура на этапе ремонта выстроили нишу. Встроенную систему хранения изготовили на заказ. Оттенок фасадов подобрали на несколько тонов темнее цвета стен — так кухня-ниша не бросается в глаза в совмещенном пространстве. Вся бытовая техника встроенная, хранение сосредоточено в верхнем ярусе.

«Круглая форма стола смягчает геометрию кухни, — комментирует дизайнер. — Черный цвет подстолья и стульев создает в интерьере контраст. Украшением этой зоны стала винтажная картина из соломки с изображением аистов. Этот предмет привнес в интерьер теплоту и ностальгию, напоминая о традициях ручной работы».
Для гостиной выбрали диван Сорен от производителя divan.ru. Модель понравилась своей «легкостью» и лаконичностью, а цвет обивки идеально вписался в интерьер. Черные ножки гармонично перекликаются с акцентами в других зонах.
Товары бренда divan.ru
Прием: цвет стены в гостиной плавно переходит в цвет потолка в спальне, создавая ощущение единства и воздушности.
Спальня
Центральное место в спальне занимает кровать с «легкой», визуально невесомой конструкцией. Около окна организовали рабочую зону, которую дополнила светлая картина.
На чем сэкономили: керамогранит на подоконниках — недорогой, но эффектный декоративный элемент, который добавляет интерьеру индивидуальности.
Хранение организовали с помощью вместительного шкафа Кимбол от divan.ru. Модель привлекла внимание контрастными черными ручками, которые придали интерьеру дополнительную динамику. Благодаря тому, что под объемный шкаф сделали нишу, его «растворили» в пространстве.
Серия Кимбол бренда divan.ru
Прихожая
Коридор плавно переходит в кухню-гостиную, благодаря чему при входе сразу открывается вид на общее пространство и панораму окна. У входа в квартиру располагается комод со множеством маленьких ящиков.
Обратите внимание: входная зона и стена за комодом оформлены с использованием приема колор-блок в зеленом оттенке, объединяющего прихожую с остальными пространствами квартиры.
После перепланировки на входе в квартиру появилась гардеробная. Здесь не только предусмотрели модульную систему хранения вещей, но и спрятали технические щитки, а также вывели и подключили стиральную машину.
Санузел
Для хранения в санузле предусмотрены вместительная тумба под раковиной и встроенный шкаф над инсталляцией.
Автор проекта
Дизайнер Зоя Закалюжная (+7 985 780-06-39, pismennyistol@mail.ru).
Хотите опубликовать свой проект в нашем блоге?
Пишите на roomtour@divan.ru
Форматы, жанры, на каких условиях >>

































