Этот дом — пример современного подхода к загородному отдыху, где сочетается комфорт и красота природы. Владельцы — активные и целеустремленные — обустроили пространство для уединения от городской суеты. Посмотрим, что получилось.

Место: арт-парк «Гармонд», Московская область
Объект: резиденция 120 кв.м
Высота потолков: от 2,6 до 5,4 м
Автор проекта: дизайнер Наталья Казанова
Автор фото: Мария Иринархова
Реализация: 2024 год
Что просили заказчики
- Нейтральный современный интерьер в светлых оттенках.
- Пространство для общения семьи.
- Множество сценариев освещения.
Логика планировки
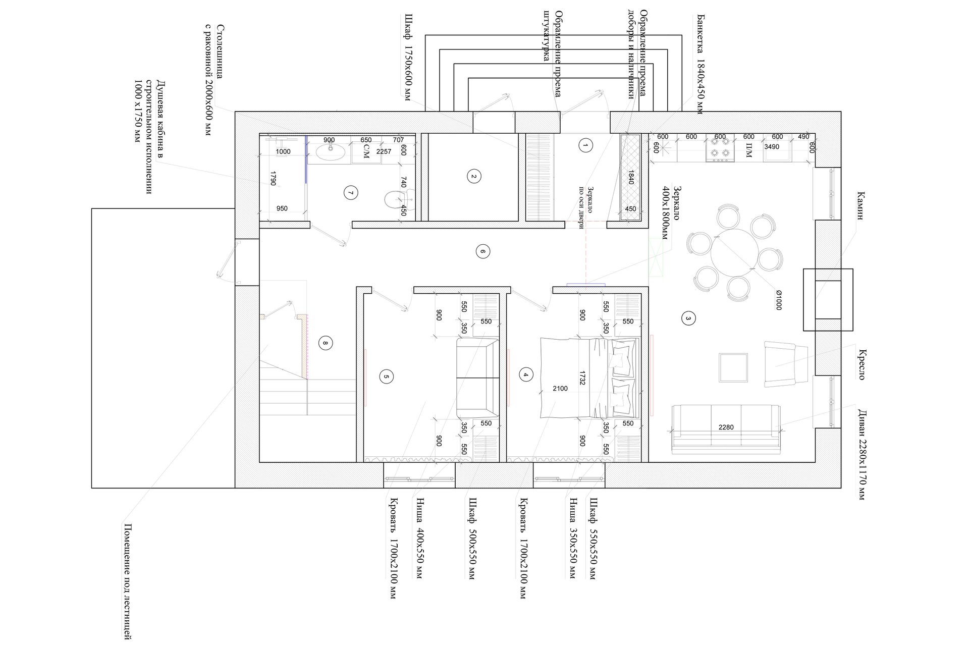
Дом построен по индивидуальному проекту. Перепланировка не потребовалась — работа дизайнера велась совместно с архитектором. На первом этаже расположены прихожая, коридор, кухня‑гостиная, две спальни и санузел. На втором этаже — мастер‑спальня с санузлом.
Первый этаж
Кухня-гостиная
Кухня-гостиная — основное помещение в доме. Пространство разделено на три функциональные зоны: кухня, столовая и гостиная. В центре интерьера — камин из клинкерного кирпича. Его топка и дымоход выдержаны в едином стиле — внутри и снаружи здания просматривается одинаковая высота и цвет. В гостиной конструкция дымохода подсвечивается светодиодной лентой с двух сторон.
На чем сэкономили: стеновые панели и столешница гарнитура выполнены из пластика. Корпус гарнитура изготовлен из ЛДСП, фасады — из МДФ в пленке.
Товары бренда divan.ru
Диван Клаймар от производителя divan.ru — сочетание современного обтекаемого дизайна и практичности. Велюр Ultra — обивка c опцией легкой чистки, ей не страшны бытовые загрязнения. Кресло Мэник — компактное, удобное и оснащено поворотным механизмом.
Товары бренда divan.ru
Обратите внимание на вертикальные панели в зоне гостиной. С помощью них подчеркнули высоту помещения и добавили декоративный акцент на стену.
Спальни
Обе спальни на первом этаже небольшой площади. Главная задача, стоявшая здесь — спроектировать системы хранения, которые не «съели» бы пространство. Решено было поставить шкафы «вокруг» кровати Шерона от divan.ru.
Обратите внимание на подсветку. Расположение светильников позволяет создать мягкий, рассеянный свет в зоне прикроватного хранения.
Во вторую спальню решили не устанавливать кровать, а использовать раскладной диван Льери Мини от divan.ru. Такая мебельная композиция дает возможность трансформировать комнату в кабинет или детскую при необходимости.
Прихожая, коридор и лестница
В коридоре использован прием светового панно, которое обеспечивает мягкое и комфортное освещение в вечернее время. Такой способ подсветки создает интересный световой рисунок на стене. Для хранения в прихожей предусмотрен вместительный шкаф и тумбы под сиденьем.
На втором этаже идея игры со светом развивается за счет подсветки перил. Прием служит мягким вечерним освещением, обеспечивая безопасность при перемещении. При входе на второй этаж отделили небольшой холл с окном, где установили кресло и столик.
Обратите внимание на кресло Тилар от divan.ru в небольшой зоне отдыха. «Выбор ткани — буклированной и объемной — обусловлен ее высокой тактильностью, — комментирует дизайнер. — Обивка из букле приятна на ощупь, обладает выразительной текстурой и добавляет в интерьер ощущение тепла».
Санузел
«Санузел на первом этаже — гостевой и хозяйственный одновременно, — комментирует дизайнер. — Здесь предусмотрена стиральная машинка и шкафы для хранения».

Второй этаж
Мастер-спальня
Мастер-спальня на втором этаже — многофункциональное помещение. При входе расположена гардеробная, в основном пространстве — кровать, комод и стол. Стол может использоваться как рабочая поверхность или место для макияжа.
Задача заключалась не только в экономии средств, но и времени. Поэтому мы выбирали поставщиков с минимальными сроками изготовления. Когда у меня есть проекты с такими короткими сроками, divan.ru всегда занимает первое место в списке исполнителей.
Товары бренда divan.ru
Мастер-санузел
Чтобы оформить потолок в санузле с минимальным опуском, его отделали вагонкой. На стенах и на полу — керамогранит, практичный и влагостойкий. Оттенок вагонки подобрали в тон керамограниту на полу.
Автор проекта
Дизайнер Наталья Казанова (+7 916 778-89-98, Homedecor@list.ru, сайт).
Хотите опубликовать свой проект в нашем блоге?
Пишите на roomtour@divan.ru
Форматы, жанры, на каких условиях >>

















































