Концепция этого интерьера выросла из одного французского проекта — дизайнеры вдохновились парижской квартирой с оранжевой прихожей и цветным потолком. Этот прием и взяли за основу. Посмотрим, что получилось.

Место: г. Москва
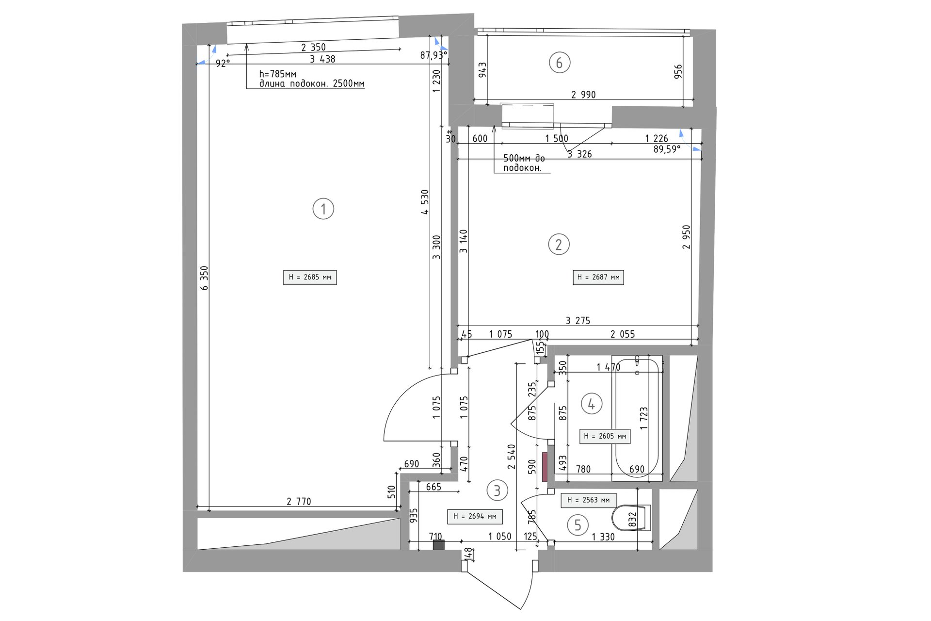
Объект: однокомнатная квартира 35 кв.м
Высота потолков: 2,69 м
Авторы проекта: дизайнеры Соня Гройсберг и Юнна Лукинских, студия инвестдизайна Yuloo Studio
Автор фото: Юлия Снарова
Бюджет проекта: 1,6 млн рублей
Реализация: 2025 год
Что просили заказчики
- Подготовить квартиру для сдачи в аренду.
- Использовать в интерьере насыщенные оттенки.
«Квартира — инвестиционный актив семьи. Правда, после приемки дочь заказчицы упрашивала маму переехать в эту квартиру после окончания школы — с нашими проектами так часто бывает, — рассказывают авторы проекта. — Заказчица — предприниматель со своим производством, хотела яркие оттенки в интерьере, чему мы были очень рады — обычно заказчики их боятся. Цвет помог отвлечь внимание от неприглядной отделки застройщика.
Как и в любом нашем проекте, у бюджета были границы, которые формируются на основе предполагаемой стоимости аренды. Это основное и, наверное, единственное ограничение. Срок в нашей сфере тоже важен, здесь хотели успеть к началу учебного года, когда студенты ищут себе жилье — вокруг много престижных вузов, и это большой пласт целевой аудитории. В сентябре поиск арендатора был бы сложнее, а у нас получилось сдать квартиру за два часа (сдали в конце августа)».
Логика планировки
Квартира досталась заказчице по программе реновации, это пространство с типовой отделкой: бежево-коричневая плитка, белые стены с обоями под покраску, фартук из плитки, пластиковые плинтусы, бюджетные межкомнатные двери и сантехника.
Достоинства объекта:
- большая спальня, в которой удалось разместить несколько функциональных зон;
- солнечная сторона;
- потолок — оштукатуренная плита перекрытия, которую можно покрасить (но нельзя перенести светильники).
Недостатки объекта:
- крошечная кухня;
- раздельный санузел;
- неровные стены с перепадами;
- недостаточное количество выводов для приборов освещения (одна люстра на большую спальню).
«Ремонт от застройщика был одним сплошным ограничением — нельзя было сносить никакие перегородки и стены, — рассказывают дизайнеры. — Поэтому перепланировки в квартире не было. Изменения вносили точечно: перенесли розетки, заменили сантехнику и гофру унитаза, поклеили акцентные обои, покрасили плитку в ванной, двери, заменили фартук».
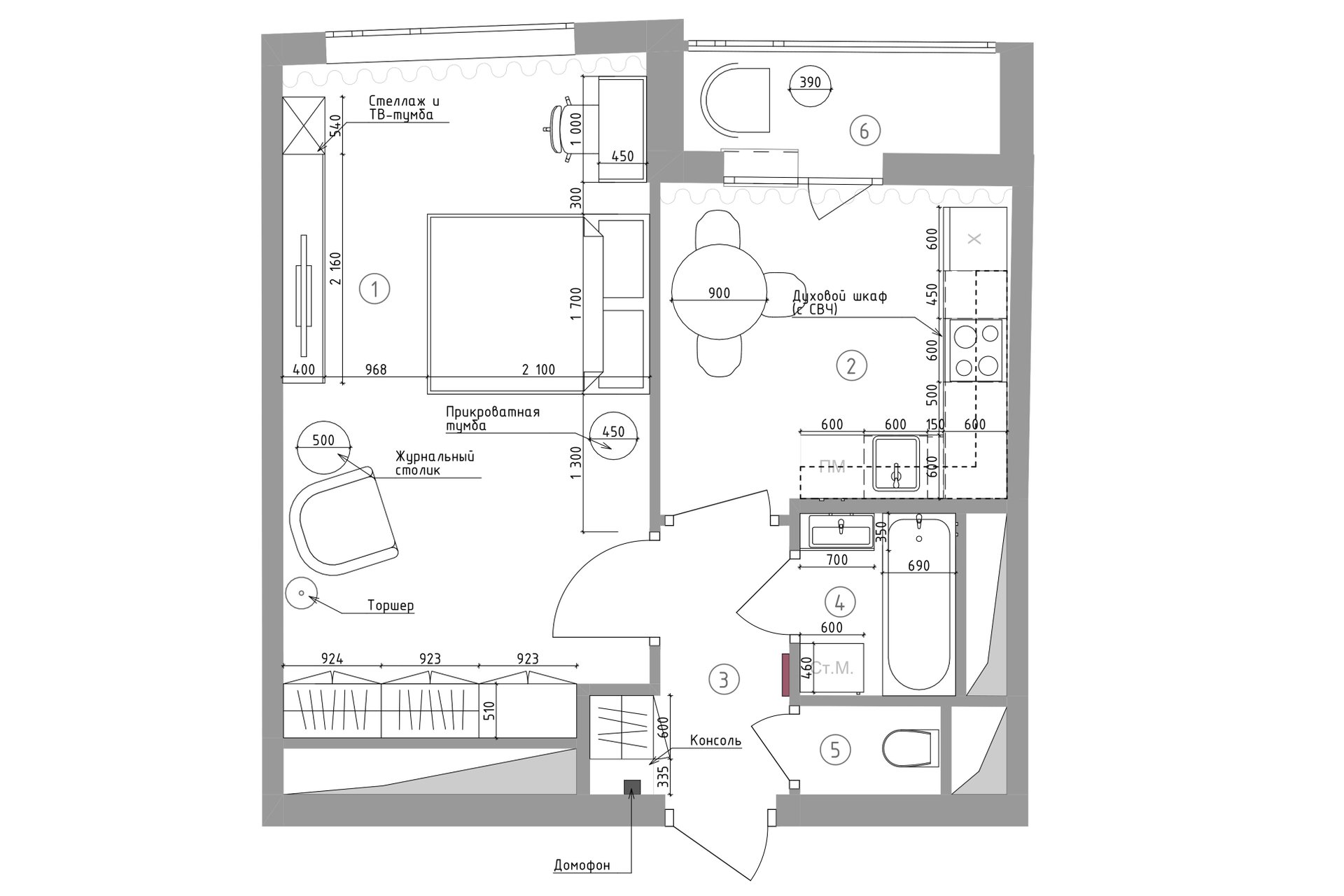
Спальня
На одной из стен в спальне был выступ, образованный «куском» несущей стены. Выравнивать поверхность не стали — визуально обыграли выступ цветом. Так часть стены, рабочий стол и потолок в комнате стали терракотовыми. «И мы, и владельцы довольны идеей покраски потолка, — комментируют дизайнеры. — Чаще всего работаем с натяжными потолками, и такое редко можно реализовать. На просмотрах терракота производила вау-эффект, объявление было очень популярным. Стену за изголовьем украсили акцентными фотообоями».
Кровать Адона заказали у бренда divan.ru. Нужно было интересное, немного игривое и фантазийное изголовье, которое сочеталось бы с обоями. Оттенок ткани выбрали по каталогу divan.ru — это один из самых любимых моих каталогов из домашней коллекции. А при выборе обивки стула Милам для рабочего места отдали предпочтение бежевому, чтобы не перегружать пространство.
Товары бренда divan.ru
От застройщика в комнате была трехметровая ниша — здесь спроектировали шкаф. Внутри — вертикальное и горизонтальное хранение, отсек для хозяйственных принадлежностей, выдвижные ящики. Рядом обустроили зону отдыха с креслом Ансил и журнальным столом Лили от бренда divan.ru. ТВ-зона с закрытыми ящиками и открытым стеллажом для книг и декора выполнена на заказ.
Проблема и решение: на всю комнату застройщик предусмотрел только один электровывод на потолке. Дизайнеры подобрали люстру с максимальным количеством лампочек и визуально выделили ее лепниной, превратив в украшение комнаты. Для создания уюта добавили средний свет (торшер) и нижний — две настольные лампы.
Кухня
Обои от застройщика на кухне перекрасили, фартук выложили крупноформатным керамогранитом. Гарнитур расположили углом. Благодаря тому, что для хранения задействовали всю высоту стены, места для утвари и продуктов здесь более чем достаточно.
Прием: насыщенный оттенок верхних шкафов приглушили керамогранитом под серый мрамор на фартуке и спокойным цветом нижнего яруса.
Товары бренда divan.ru
Прихожая
Потолок и стены во входной зоне выделили терракотовым цветом. Напольное покрытие не меняли. Электрощиток, расположенный на самом видном месте, закрыли зеркальным шкафом — зеркало вешать было негде. Двери тоже покрасили в цвет стен. Лаконичный шкаф для верхней одежды дополнили цветными мебельными ручками.
Ванная и туалет
Плитку в санузле решили не менять — просто ошкурили, покрасили и покрыли лаком. Все столярные изделия выполнены на заказ. Стиральную машину дополнили столешницей, слева спроектировали узкий шкаф для порошков. Хранение косметики предусмотрели в тумбе под раковиной.
Авторы проекта
Дизайнер и основатель студии Yuloo Studio Юнна Лукинских (@yunna.lukinskih, @yuloo_studio, телеграм-канал, сайт, pr.yuloostudio@gmail.com, +7 916 380-13-95).
Дизайнер студии Yuloo Studio Соня Гройсберг (@sofochka.grois).
Yuloo Studio специализируется на создании функциональных и эстетичных интерьеров для аренды и продажи. Мы повышаем ликвидность объектов, увеличивая доходность для клиентов на 30–50 %. За плечами команды более 150 реализованных проектов и глубокое понимание, как превратить недвижимость в эффективный инвестиционный инструмент.
Хотите опубликовать свой проект в нашем блоге?
Пишите на roomtour@divan.ru
Форматы, жанры, на каких условиях >>






































