Владелец этой квартиры по своей профессии связан с изобразительным искусством. Смелый, яркий и неординарный интерьер закрыл внутреннюю потребность в ежедневном вдохновении для творческого человека.

Место: г. Санкт-Петербург, ЖК «Новый Лесснер»
Объект: однокомнатная квартира 47,9 кв.м
Высота потолков: 2,75 м
Автор проекта: дизайнер-декоратор Олеся Лещенко
Автор фото: Андрей Шишов
Реализация: 2024 год
«Отправной точкой проекта стало творчество Василия Кандинского, — комментирует дизайнер Олеся Лещенко. — Это можно увидеть в колористике, формах мебели и декора. Пространство квартиры наполнено светом, линиями, цветом и даже музыкой — той, которую мы хотим услышать».
Что просил заказчик
- Интерьер, который отражает его неординарную и яркую личность.
- Использовать работы современных художников в оформлении проекта.
- Организовать большое количество мест для хранения, соблюдая эргономику пространства.
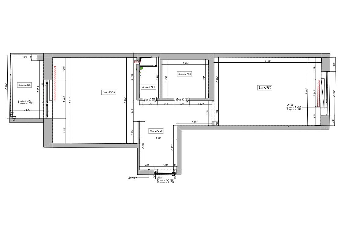
Логика перепланировки
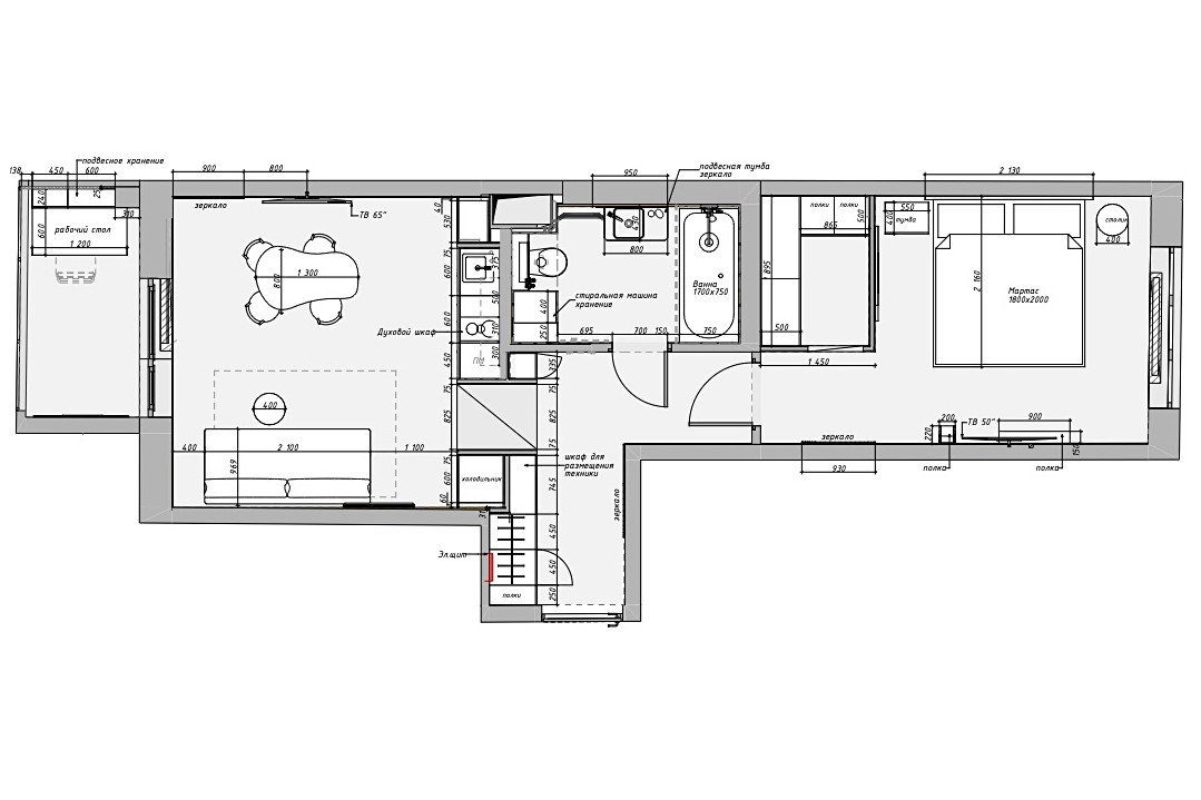
От застройщика владельцу досталась типовая однокомнатная квартира с раздельным санузлом. Ванную и туалет в ходе перепланировки объединили, получив совмещенный и просторный санузел с постирочной. В спальне выделили гардеробную, при входе в кухню выстроили два простенка, чтобы вписать в образовавшиеся ниши встроенную мебель.
Кухня-гостиная
«В кухне-гостиной мы использовали небесный синий — любимый цвет Василия Кандинского, который он считал победоносным, — рассказывает дизайнер. — Абстракционист был убежден, что цвета могут передавать звуки и мелодии. Синий для него звучал успокаивающе, как виолончель. Также в колористической карте песочные и терракотовые оттенки как отсылка к глине и закатному солнцу. В итоге сложилась композиция из "земли и неба" — из необходимых для жизни предметов мебели и декора».
Контрастный кухонный гарнитур состоит из двух частей: серо-бежевой — линейной, с рабочей зоной, и черной — двух встроенных колонн по бокам (в одной находится холодильник, во второй организовано хранение). Взгляды здесь привлекают не утилитарные вещи (техника, фурнитура), а смелые формы асимметричных шкафов верхнего яруса и дверного проема.
Обратите внимание: стол в обеденной зоне изготовлен на заказ. Столешница выполнена в форме палитры, а ножек не четыре (традиционно), а целых шесть. «Ножки, расположенные под разным углом, будто сошли с картины "Пейзаж" Кандинского», — объясняет автор проекта.
Диван Рейли от производителя divan.ru — лаконичный, без подлокотников. Их роль взяли на себя авторские подушки-полусферы.

Товары бренда divan.ru
«Абстрактная композиция "Любовь", которую мы не видим при дневном свете, проявляется при загорании одноименного подвеса, — рассказывает дизайнер. — Тень от светильника напоминает форму сердца, а рельефы фигур на картине обнимают друг друга. Тонкий декоративный прием и маленькое дизайн-чудо сотворили чудо и наяву: после ремонта хозяин квартиры, который много лет искал свою вторую половинку, нашел ее, и дом обрел свою хозяйку».
Интересная деталь: столик у дивана изготовлен на заказ — его можно использовать для игры в шахматы и шашки, а также как табурет (за счет усиленного каркаса).
Лоджия
Просторную лоджию превратили в рабочий кабинет для владельца квартиры. Здесь установили письменный стол, мягкое кресло, а также спроектировали шкаф до потолка с разными системами хранения.
Обратите внимание на картину на противоположной от рабочего стола стене. Благодаря потолочным спотам она как музейный экспонат, который можно лицезреть прямо дома.
Спальня
«По версии Кандинского, горчичный цвет отвечает за творческое мышление, — комментирует дизайнер. — А белый цвет у художника — это пауза. В спальне мы просто не могли обойтись без белого. При включенной подсветке рельефной стены кажется, будто капли дождя стекают по стеклу. Тем самым создается романтическая обстановка. Несмотря на присутствие насыщенных красок в помещении, мы чувствуем тут спокойствие».
Центральное место в комнате занимает лаконичная мягкая кровать Лайтси 160 от divan.ru. Модель оснащена подъемным механизмом — система хранения в спальне не бывает лишней.
Товары бренда divan.ru
Кровать фланкируют две тумбы для личного хранения (слева — напольная, справа — подвесная, с авторским светильником-подвесом). На противоположной от окна стене повесили ценную фамильную картину заказчика. Она была написана в небольшом формате, за счет крупного обрамления ей придали значимости. Завершает композицию ковер ручной работы, яркие оттенки которого «собирают» все детали интерьера в одно целое.
Гардеробная
Большая площадь спальни позволила организовать отдельную гардеробную, освободив пространство для сна от громоздких шкафов. Вход в гардеробную сделали арочным, с синим кантом, и прикрыли фактурной шторой. Прием позволяет воздуху свободно проходить в маленькое помещение.
Санузел
Объединенный санузел вместил в себя все необходимое: полноценную ванну, большое полукруглое зеркало с внутренней подсветкой, тумбу с раковиной, унитаз с гигиеническим душем и инсталляцией. Вместо полотенцесушителя спроектировали теплую стену, а рядом поставили декоративную лестницу, на которой теперь можно сушить вещи.
Прием: синий потолочный плинтус по периметру санузла «связывает» интерьер с остальными комнатами.
Прихожая
В прихожей организовали большое количество мест для хранения: серо-бежевые фасады шкафов «растворяются» в пространстве, а синие детали подчеркивают стилистику выбранной концепции.
Автор проекта
Дизайнер Олеся Лещенко, студия LO Design (+7 911 965-66-53, сайт, @lo_design_interior).
Хотите опубликовать свой проект в нашем блоге?
Пишите на roomtour@divan.ru
Форматы, жанры, на каких условиях >>









































