Владелица этой двушки в центре Калининграда живет за границей. Получив квартиру в наследство, она решила не продавать ее, а полностью обновить, чтобы приезжать несколько раз в год. В остальное время квартира будет сдаваться в посуточную аренду. Главной задачей дизайнера Полины Чернышовой было создать интерьер, который вызывал бы эмоции не оставлял равнодушным. Посмотрим, что получилось.

Место: г. Калининград
Объект: двухкомнатная квартира 47 кв.м
Высота потолков: 2,4 м
Автор проекта: дизайнер Полина Чернышова
Стилист: Анна Семенова
Автор фото: Анна Орлова
Бюджет: 3 млн рублей
Реализация: 2025 год
«Этот интерьер создавался "от обратного", — рассказывает автор проекта. — Заказчица много путешествует, поэтому сразу отметила все боли арендных апартаментов: несовременный ремонт, отсутствие большой кровати, затемняющих штор и, конечно, визуальный ряд. Она пожелала создать уникальный интерьер, отличающийся от стандартного отельного стиля, избегая при этом бежевых оттенков».
Что просила заказчица
- Яркое комфортное пространство для проживания двух-трех человек.
- Функциональную кухню, большую кровать.
- Расположить все детали интерьера так, чтобы арендаторы чувствовали себя уютно и могли с комфортом проводить здесь время, а не просто «бросить вещи и переночевать».
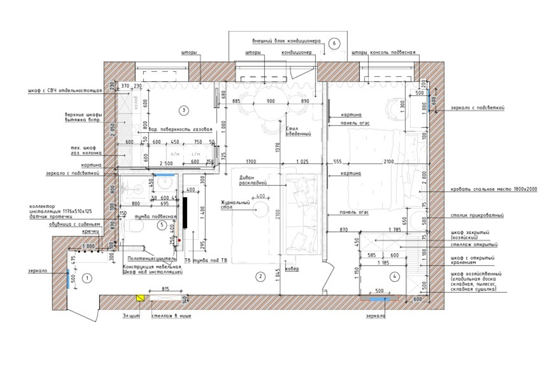
Логика перепланировки
До ремонта это была типовая двушка в хрущевке с проходной комнатой и маленькой кухней. В квартире сделали перепланировку: кухню объединили с гостиной и перенесли вход на кухню (теперь попасть в нее можно из гостиной), предусмотрев перегородку с раздвижной дверью, так как в квартире проведен газ. Дверь в спальню также перенесли для удобного прохода. Из кладовки сделали гардеробную, увеличив ее за счет спальни.

Гостиная
Старую отделку, окна и двери заменили на новые, на пол уложили кварц-виниловую плитку, а стены подготовили под покраску и дополнительно оформили декоративными панелями.
В гостиной стоит раскладной диван Сваут от divan.ru. Он привлекает внимание яркой обивкой и стильным дизайном. Дополнительный бонус — возможность трансформации в дополнительное спальное место.
Товары бренда divan.ru
Обратите внимание: в интерьере дизайнер использовала прием колор-блок. Стены (включая рельефные панели) и потолок в зоне столовой окрашены в нежный бирюзовый. На стене напротив окна наклеены обои с медузами.
Кухня
Кухня — самая яркая часть квартиры, напоминающая шкатулку. Гарнитур изготовили на заказ. Фасады верхнего яруса — перфорированные, изготовлены из металла. Наполнение кухни продумано до мелочей: здесь есть встроенный холодильник под столешницей, газовая варочная поверхность, вытяжка и посудомоечная машина. За одним из нижних фасадов скрыта стиральная машинка. Подоконник выполняет роль барной стойки для завтраков и перекусов.
Обратите внимание: напольная плитка имитирует герб Кенигсберга.
«Арт на стене кухни я придумала сама, — делится дизайнер. — Мне хотелось изобразить довольных дам с Балтийского побережья в пляжный сезон. Мы предоставили разработчикам точное техническое задание, основанное на моих идеях и пожеланиях заказчицы».
Спальня
В спальне светлые стены «разбавили» обоями с рисунком цветов и рыб с ножками в области изголовья кровати. Часть стены напротив оформили декоративными панелями, окрашенными в зеленый цвет. Комната оснащена кроватью с матрасом шириной 180 см и туалетным столиком. Освещение — верхние светильники и прикроватные бра с ридерами для уютного вечернего света.
Мягкие кровати бренда divan.ru
Гардеробная зона разделена на две части: одна предназначена для гостей, другая — для хранения запасных одеял и подушек в закрытом шкафу.
Прихожая
В прихожей стены и потолок окрашены в терракотовый, на пол уложена плитка с ритмичным рисунком. В зоне входа установлены крючки для верхней одежды и обувница, далее находится ниша, в которую встроили стеллаж.
Санузел
В санузле для отделки использованы геометричная плитка на полу, бежевый керамогранит на стенах и зеленые мебельные панели. Дизайнер отмечает, что пространство выглядит, как «арбуз на пляже»: с нейтральным фоном и яркой мебелью. Для хранения предусмотрены тумба под раковину и шкафчик над унитазом. На потолке расположено светящееся полотно, которое визуально увеличивает пространство.
Автор проекта
Дизайнер Полина Чернышова (@polinachernyshova_interiors, сайт).
Хотите опубликовать свой проект в нашем блоге?
Пишите на roomtour@divan.ru
Форматы, жанры, на каких условиях >>



















































