В ходе редизайна в этом офисе изменилась стилистика, появилась новая мебель, освещение, декор. Получилось яркое и энергичное пространство, в котором можно бесконечно переставлять мебель.

Место: г. Москва
Объект: офис, творческая мастерская певицы и дизайнера одежды Дианы Завидовой, 60 кв.м
Автор проекта: дизайнер Ксения Агаева
Автор съемки: Павел Беспалов
Бюджет проекта: 600 тысяч рублей (комплектация)
Что просила заказчица
- Обновить интерьер без капитального ремонта.
- Сделать пространство легко трансформируемым, более спокойным, но с интересными акцентами.
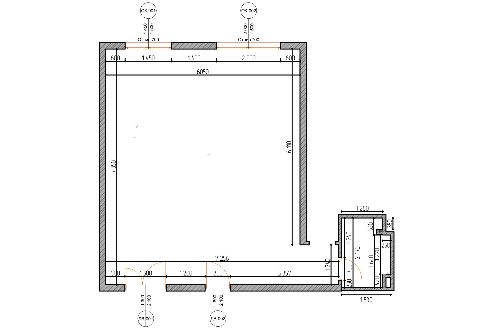
- Интересный факт: офис находится в историческом здании, доходном доме А.И. Синицына.
Логика планировки
Пространство open space 60 кв.м проектировали для различных задач. Заказчица занимается музыкой, в офисе есть звукозаписывающая студия. Одновременно здесь собирается и обсуждает разные задачи ее арт-команда. Помещение используется в том числе и как выставочная площадка для оригинальных пиджаков.
Отделка и меблировка
«Для оформления выбрали стиль баухаус — неизбитое направление с подходящей атмосферой, — рассказывает дизайнер. — Любой декор или просто мазок яркими красками в нем смотрится уместно и аутентично. Базовая отделка довольно смелая: темный потолок, сочетание аутентичной лепнины и ультрасовременных форм и фактур. Стены, вырашенные в нейтральный цвет, служат холстом для ярких решений».
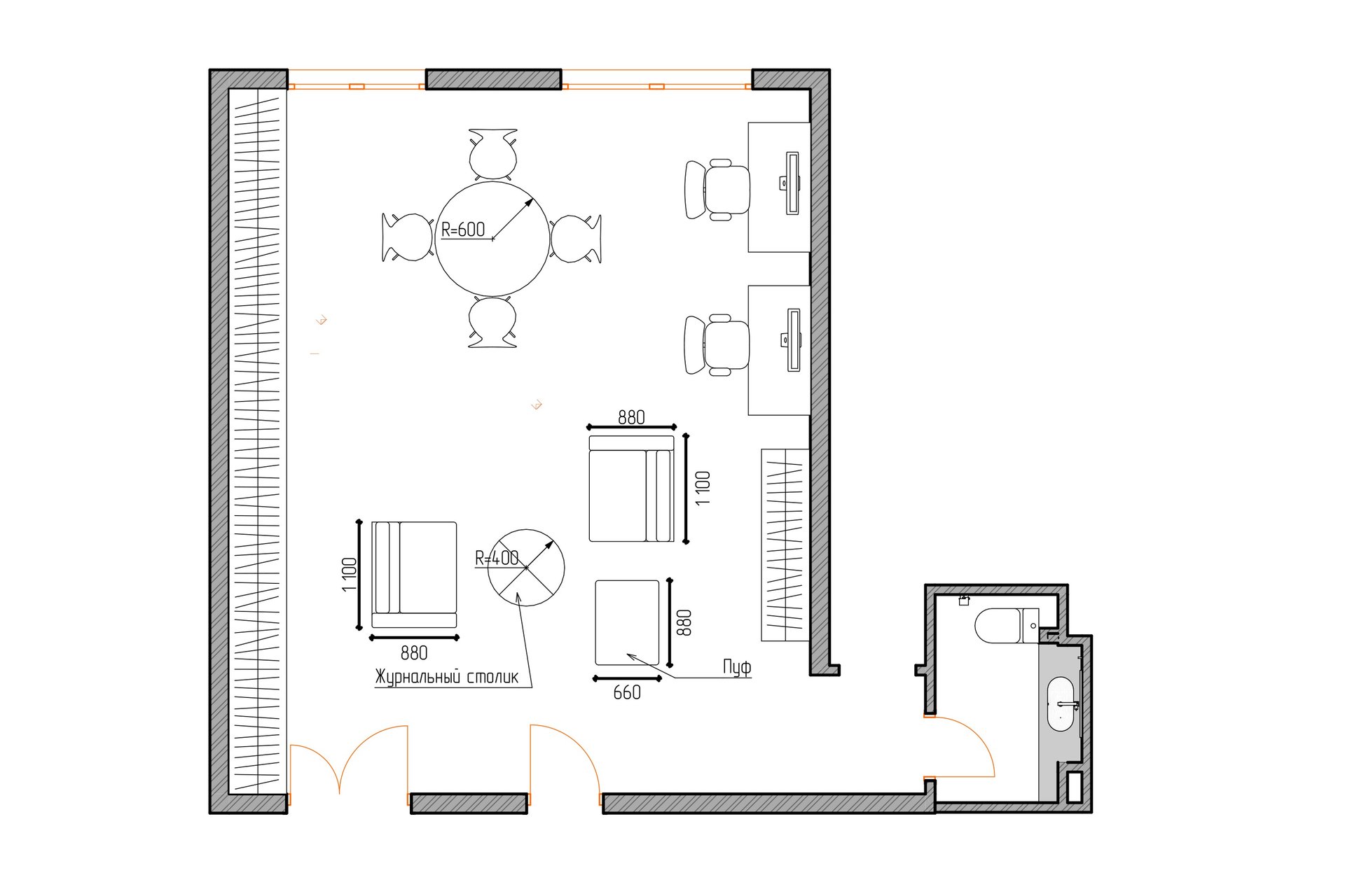
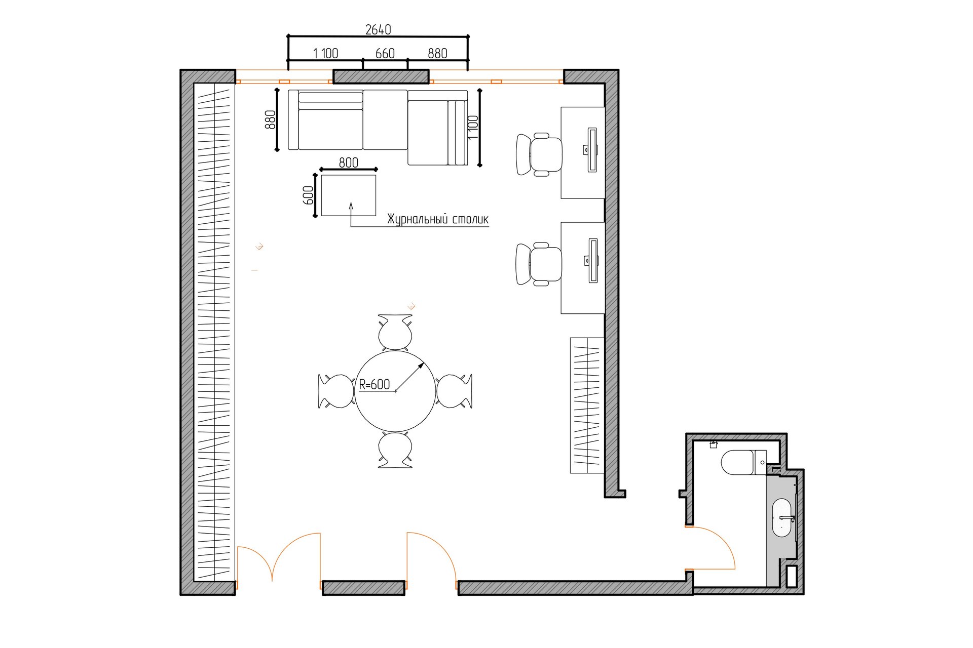
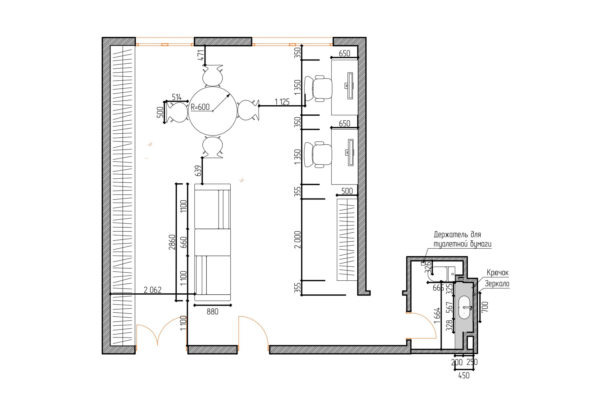
Изначально в офисе планировалось проводить большие собрания за длинным столом. Но владелице захотелось поменять концепцию и организовать несколько индивидуальных рабочих мест с возможностью трансформировать пространство под разные задачи.
Для команды и посетителей установили круглый стол Тюлип от бренда divan.ru с удобными креслами.
У окна расположили стол для руководителя со стеклянной столешницей и тонким металлическим основанием. Декоративный элемент из дерева заказчица приобрела самостоятельно. Для устойчивости дерево поставили в цветочный горшок и залили цементной смесью. Так появился интересный акцент.
«Чтобы пространство легко менялось в зависимости от задач, требовался модульный диван, соответствующий общей стилистике пространства, — рассказывает дизайнер. — Модульный диван серии Brera, концепт которого разработан компанией divan.ru в коллаборации с предметным дизайнером Димой Логиновым, подошел по всем параметрам — расстановка получилась вариативной, сдвигать части дивана можно самыми необычными способами. Обивка насыщенного цвета стала ярким акцентом. Зону отдыха дополнили журнальными столами из металлической проволоки».
Я посетила выставку, на которой была впервые представлена серия Brera, и сразу поняла, что в ближайшее время найду дивану применение. И не ошиблась — дизайн покорил сердце заказчицы. Менеджер помог быстро сориентироваться с модулями и размерами, заказ оперативно изготовили, оттенок превзошел все ожидания.
Товары бренда divan.ru
«Заказчица осталась довольна преображением, — подводит итог дизайнер. — Обновленный офис никого не оставляет равнодушным. Каждый уголок получился невероятно интересным, получилось сохранить легкость и при этом максимально увеличить функциональность помещения и вариативность расстановки мебели».
Автор проекта
Дизайнер Ксения Агаева (@ksenia_agaeva, сайт, agaewe@mail.ru, +7 962 806-18-08).
Хотите опубликовать свой проект в нашем блоге?
Пишите на roomtour@divan.ru
Форматы, жанры, на каких условиях >>




















