Эта квартира была приобретена для сдачи в долгосрочную аренду — здесь много интересных, но бюджетных решений. Интерьер нейтральный и минималистичный, чтобы понравился каждому. А еще много зеркал, дерева и камня, гармонии и эстетики. Посмотрим, что получилось.

Место: г. Санкт-Петербург, ЖК «Форсайт»
Объект: пентхаус 80 кв.м
Высота потолков: 3 м
Автор проекта: дизайнер Артем Алексеев
Автор фото: Андрей Семенов
Бюджет: 12 млн рублей
Реализация: 2025 год
Что просили заказчики
- Современный интерьер, подходящий для долгосрочной аренды.
- Износостойкие стены, полы, мебель.
- Много мест для хранения.
Зону с качественным освещением для видеосъемок. «Новая потребность в функционале квартиры, которая появилась совсем недавно, — комментирует автор проекта. — Наличие места с нейтральным фоном и качественным светом, где будет удобно снимать короткие ролики для соцсетей и блогов».
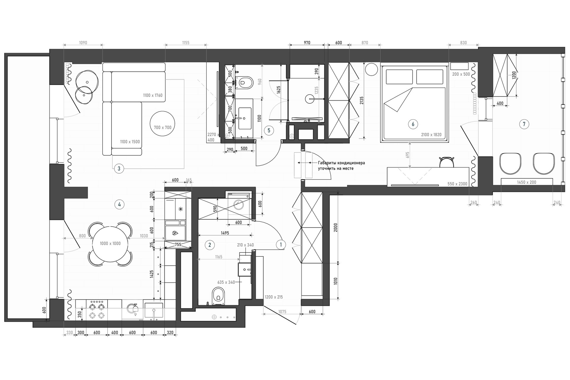
Логика перепланировки
«Изначально это была двухкомнатная квартира, которую мы переделали в большую однокомнатную, объединив кухню и гостиную, — рассказывает дизайнер. — В квартире также есть изолированная спальня с просторной лоджией, совмещенный санузел и прачечная, выполняющая роль гостевого санузла».
Кухня-гостиная
Необычным решением в зоне готовки стали зеркальные фасады, которые «растворяют» гарнитур в общем пространстве. Фасады имеют торцевые алюминиевые ручки и легко моются. Для отделки стен использован керамогранит — прочный и влагостойкий материал.
Прием: для обеденной зоны выбрали прозрачные стулья. Они не перекрывают вид из панорамного окна и впускают в кухню максимум «воздуха» и света.
Обратите внимание на покрытие стен. Шпатлевка с песком — бюджетное решение, имитирующее текстуру декоративной штукатурки. В качестве финиша использовали лак для камня, который еще сильнее подчеркивает необычную фактуру.
Для гостиной заказали модульный диван Риббл от производителя divan.ru. Конфигурация позволяет адаптировать его под любые нужды — модули можно раздвинуть и расставить по комнате в произвольном порядке.
Товары бренда divan.ru
Прием: чтобы телевизор не выделялся «пятном» на фоне светлой стены, зону ТВ оформили черной панелью.
Спальня
В спальне много фактуры дерева — встроенный шкаф напротив окна «перетекает» в панели за изголовьем. Центральное место в комнате занимает кровать Лайтси от divan.ru в обивке нейтрального бежевого цвета. Также в спальне есть рабочая зона и зона ТВ.
Обратите внимание: черная панель разделяет верхние и нижние фасады шкафа и «продолжается» по стене за изголовьем кровати, маскируя розетки.
Товары бренда divan.ru
Балкон
На балконе организована зона отдыха со стульями и столиком Кендра от divan.ru. Пространство можно использовать для съемок видео — здесь много естественного света, стены окрашены в нейтральные оттенки, продумано несколько сценариев дополнительного освещения.
Санузел
Основной санузел — совмещенный, по цвету контрастирует с остальным интерьером. Над раковиной установлен большой зеркальный шкаф, который служит местом хранения и визуально расширяет пространство.
Гостевой туалет и прачечная
Второй туалет в квартире — гостевой. Также здесь организована зона прачечной — предусмотрена стиральная и сушильная машины и вместительный шкаф с корзинами для сортировки вещей. «Стиль гостевого санузла напоминает ресторанный формат: компактная раковина, круглое зеркало и аккуратная подсветка создают ощущение лаконичности и комфорта», — комментирует дизайнер.
Прихожая
Шкаф в прихожую изготовили на заказ, что позволило вписать в конструкцию скамью и несколько функциональных отделений для одежды.
Обратите внимание: для этого интерьера был выбран тканевый натяжной потолок со скрытой подсветкой.
Автор проекта
Дизайнер Артем Алексеев (сайт, info@artalekseev.ru, @artalekseev.design).
Хотите опубликовать свой проект в нашем блоге?
Пишите на roomtour@divan.ru
Форматы, жанры, на каких условиях >>






































