Идея этого проекта — создать легкий интерьер, полностью лишенный пафоса и серьезности, наполненный юмором и любовью к жизни. Для оформления выбрали светлую теплую палитру с яркими и графичными акцентами. Посмотрим, что получилось.

Место: г. Москва, Новоданиловская набережная
Объект: апартаменты 37 кв.м в новостройке
Автор проекта: дизайнер Надежда Ракова
Автор фото: Евгений Кулибаба
Реализация: 2024 год
Что просил заказчик
- Максимально открытое пространство, но с возможностью приватности.
- Использовать светлые, преимущественно теплые оттенки.
- Продумать системы хранения.
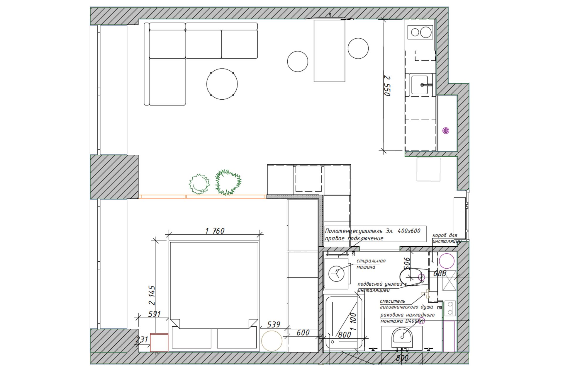
Логика планировки
Апартаменты сдавались со свободной планировкой, без отделки. «Владелец — творческий молодой человек, не любящий стереотипы, — рассказывает дизайнер. — Идея сделать открытое пространство сразу пришлась ему по душе. Мы решили не возводить конструктивные перегородки между спальней и кухней-гостиной, а использовать стеклянную раздвижную конструкцию, которая визуально увеличивает объем».
Гостиная
По стилистике проект решен в духе эклектики второй половины 20 века, с элементами модернизма и постмодернизма. Интерьер вдохновлен дизайном группы «Мемфис» и исполнен в современной трактовке. Живописные работы московских художников, керамика, винтажный декор и необычные предметы мебели — все это помогло достичь желаемого результата.
«Основной технической задачей проекта было максимально открыть пространство, создав иллюзию объема. В итоге в проекте даже экстерьер с городской средой естественно вписывается в стилистику, — рассказывает автор проекта. — Пространство небольшое, поэтому особенно важно было соблюдать баланс цвета и объема между зонами. В палитре есть как смелые и яркие цвета детства, лета и праздника, так и строгие оттенки при общей светлой базе. В отделке отдали предпочтение натуральным современным материалам, тактильно приятным покрытиям».
В зоне гостиной акцентом выступает диван Риббл от divan.ru. Конструкция модульная и состоит из двух частей, которые можно передвигать в зависимости от задачи.
Товары бренда divan.ru
Кухня
Зону готовки «убрали» в заранее выстроенную нишу. Фасады гарнитура в цвет стен визуально растворяют габаритную мебель в пространстве.

От верхнего яруса намеренно отказались, чтобы добавить «воздуха». Вместо обеденного стола установили барную стойку голубого цвета с открытыми полками по бокам и барные стулья с сиденьем из металлических пружин.
Спальня
На небольшой площади в спальне удалось разместить встроенный шкаф, прикроватный столик и мягкую кровать Слипсон от divan.ru. Нейтральная обивка создает мягкий контраст на фоне светлой стены, оклеенной фактурными обоями.
Товары бренда divan.ru
Прихожая
Входная зона выделена голубым цветом стен. Четкие прямые линии визуально смягчили округлыми линиями настенного зеркала и пуфа Ринт от divan.ru. Такой прием «ломает» восприятие пространства и сдвигает границы. Для хранения предусмотрели вместительный шкаф ярко-оранжевого цвета. Шкаф расположен углом вдоль смежных стен и переходит в прихожую из гостиной.
Санузел
Пол и мокрые зоны в санузле облицевали плиткой. Остальные поверхности покрыли краской для влажных помещений.
Автор проекта
Дизайнер Надежда Ракова (сайт).
Хотите опубликовать свой проект в нашем блоге?
Пишите на roomtour@divan.ru
Форматы, жанры, на каких условиях >>
































