Отдельные спальня и гостиная, кабинет, гардеробная, постирочная. Смотрим, как дизайнеры нестандартно распоряжаются скромной площадью «стандарта» отечественных новостроек.
Типовая планировка
Перед нами классическая однокомнатная квартира современного образца — 39 квадратов, кухня-гостиная, изолированная спальня, совмещенный санузел. Владельцы видели в планировке лишь один недостаток: при входе в квартиру взгляд упирался в диван. Решили задачу с помощью шкафа, который «отсек» гостиную от прихожей.
На фото: интерьер квартиры 39 кв.м в г. Москве. Автор проекта: дизайнер-архитектор Иван Чернечков; фотограф: Мария Иринархова
Подробнее о проекте: Уютный минимализм в евродвушке 39 кв.м
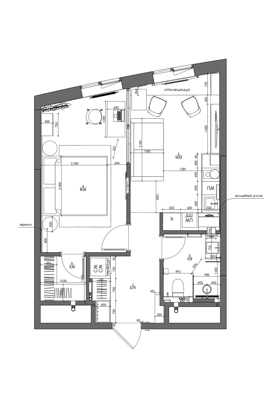
С внутренним окном
В этой квартире похожая планировка — на 42,8 кв.м организовали кухню-гостиную, спальню с гардеробной и рабочим местом, совмещенный санузел и прихожую. Обратите внимание: квартира неправильной формы — фасадная стена расположена под углом. После возведения перегородки окно спальни фактически упиралось в стену. Добавив дополнительное окно между комнатами, увеличили инсоляцию гостиной и визуально расширили помещения.
На фото: интерьер квартиры 42,8 кв.м в г. Москве. Автор проекта: дизайнер Насиба Бойматова; фотограф: Даша Мягкая
Подробнее о проекте: Спокойная евродвушка 42,8 кв.м в стиле неоклассика
Открытая планировка
В планировке этой евродвушки 40 кв.м было несколько недостатков: по правую руку от входа располагался сантехнический стояк. Поэтому кухню и санузел можно было расположить только с этой стороны. Второй недостаток — нехватка естественного света. Здесь всего два окна, которые выходят на одну сторону, и свет плохо доходит до противоположных стен. После перепланировки в квартире осталось минимум перегородок. Без них пространство воспринимается как единое целое, в квартире больше света и «воздуха».
На фото: интерьер квартиры 40 кв.м в г. Москве. Автор проекта: дизайнер Анна Шевченко; фотограф: Кристина Никишина
Подробнее о проекте: 40 кв.м в «Царской площади» с открытой планировкой
С «дополнительной» гостиной
Исходная планировка этой евродвушки 40 кв.м предполагала наличие жилой комнаты и кухни. Несущая стена делила пространство на две части, и это затрудняло переносы зон. В итоге комнату разделили на две: гостиную и спальню. За счет смещения перегородки от края пилона получили выступ. Его обыграли, превратив в нишу с полками для хранения. Прихожая, кухня и гостиная по сути являются одним помещением без капитальных перегородок. Таким образом сохранили «воздух» и ощущение простора в общих зонах.
На фото: интерьер квартиры 40 кв.м в г. Одинцово. Автор проекта: дизайнер Анастасия Кригер, студия Manera design; стилист: Евгения Давыдова; фотограф: Женя Муравьева
Подробнее о проекте: Нестандартная однушка 40 кв.м для молодой девушки
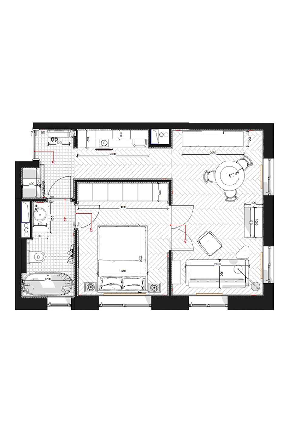
Круговая планировка
В этой евродвушке 42 кв.м застройщик предусмотрел много окон, одно есть даже в ванной. Планировку в ходе ремонта существенно перекроили: кухню вынесли в коридор, вход в спальню перенесли из прихожей в гостиную, а в санузел сделали два входа — теперь туда можно попасть как из прихожей, так и из спальни. Гостиную и спальню разделяет портал с двойными дверями, скрывающий приватную часть квартиры от остального пространства.
На фото: интерьер квартиры 42 кв.м в г. Москве. Авторы проекта: дизайнеры Маргарита Зенова и Александра Багрицевич, студия «М-Бюро»; стилист: Анастасия Пырьева; фотограф: Евгений Гнесин
Подробнее о проекте: 42 кв.м с круговой планировкой и кухней в коридоре




























