Эта квартира находится на 25 этаже, а из ее окон открывается шикарный панорамный вид на Москву. Главной задачей дизайнеров было не перегрузить дизайн «природы» в окне, а дополнить его и подчеркнуть. Посмотрим, что получилось.

Место: г. Москва, ЖК «iLove»
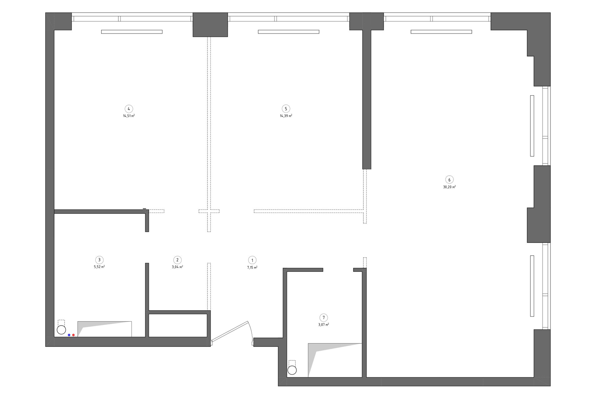
Объект: двухкомнатная квартира 75 кв.м
Высота потолков: 3 м
Авторы проекта: дизайнеры Анна и Дмитрий Коробко
Стилисты: Анастасия Корбут и Анастасия Домрачева
Автор фото: Наталья Градусова
Реализация: 2024 год
«За помощью в создании интерьера мечты к нам обратилась молодая семейная пара, — рассказывают авторы проекта. — Супруги с хорошим вкусом и трепетным отношением к цвету, просили сохранить воздушность и простор в интерьере, особенно в кухне-гостиной с большими окнами и панорамными видами. Вместе мы создали уютный и легкий интерьер, который не будет отвлекать от панорамы города, а также наполнили каждую деталь функционалом и эстетически тонким вкусом заказчиков».
Что просили заказчики
- Использовать универсальное цветвое решение, актуальное на долгое время, но разбавить его яркими (преимущественно голубыми) акцентами.
- Организовать достаточное количество мест для хранения, не перегрузив пространство.
Логика планировки
Исходную планировку сохранили без изменений. Небольшие корректировки коснулись лишь зон хранения — чтобы органично вписать в интерьер шкафы, под них выстроили ниши, и они выглядят как встроенные.
Кухня-гостиная
«Жемчужина нашего проекта — это, конечно, гостиная, — рассказывают дизайнеры. — Именно отсюда открываются панорамные виды на город, включая атмосферную Останкинскую башню. Задачей было не перегрузить “картинку”, а дополнить ее и подчеркнуть. Над диваном расположили картину Александра Трифонова “На другом берегу”, вместе с ярким ковром с геометрическим рисунком и городскими видами они создают эффектный ансамбль и задают тон всему интерьеру».
Угловые диваны бренда divan.ru
Кухонный гарнитур изготовлен на заказ. Фасады голубого цвета — продолжение неба в окнах видовой квартиры. Витрины с прозрачными дверцами визуально облегчают систему хранения.

Обратите внимание: столешница из искусственного камня переходит в невысокий бортик. А уже к нему сверху подходит мелкая плитка.
Кухню от гостиной «отделяет» обеденная группа — овальный стол (с возможностью расширить столешницу) и четыре стула.
Спальня
«Спальня — место для отдыха и спокойствия, поэтому ее решили сделать самой светлой по оттенку, дополнив интерьер графикой лепного декора на стенах», — комментируют дизайнеры.
Кровать Кевия от производителя divan.ru продолжает колористическую концепцию интерьера. Плюс к функциональности — под основанием у нее два больших ящика для хранения постельного белья.
На чем сэкономили: оптимизировать бюджет получилось за счет готовых шкафов, которые вписали в проект еще на этапе проектирования.
Товары бренда divan.ru
Прихожая
В прихожей спроектировано два шкафа: первый, при входе, предназначен для повседневной одежды. Второй, чуть дальше по коридору — для прочего хранения, в том числе и хозяйственных принадлежностей. Входную дверь и примыкающую стену покрасили голубой краской, чтобы с порога подчеркнуть концепцию интерьера.
Интересное решение: по периметру прихожей вдоль теневого плинтуса предусмотрели светодиодную подсветку.
Санузел и гостевой туалет
«Совмещенный санузел получился очень атмосферным, — рассказывают дизайнеры. — Здесь сочетаются два разных акцентных паттерна плитки. Такую комбинацию мы дополнили сине-голубым оттенком тумбы, а также выразительным кантом из панелей по периметру потолка. Все вместе смотрится максимально эффектно».
В гостевом санузле реализовали постирочную: установили сушильную и стиральную машины, а также организовали дополнительно место для хранения бытовой химии в шкафу.
Авторы проекта
Дизайнеры Анна и Дмитрий Коробко (d.a.interiordesign@mail.ru, сайт, @d.a.interiordesign).
Хотите опубликовать свой проект в нашем блоге?
Пишите на roomtour@divan.ru
Форматы, жанры, на каких условиях >>





































